Сторінка
5
Рис. 22. Схема копіювального пристрою верстатів
для зварювання каністр.
1 – каретка; 2 – нерухома направляюча пластина для каретки; 3 – рухлива пластина зі зварювальною голівкою; 4 – копірний і ходовий ролики; 5 – копірний шаблон; 6 – обертач.
Вільне зворотно-поступальне переміщення голівки у вертикальній площині здійснюється по двох взаємно перпендикулярних напрямках за допомогою двохкоординатної каретки (рис. 23.).
Кріпильний кронштейн зварювальної голівки 13 з'єднаний із направляючою пластиною 5, що вона може вільно переміщатися по вертикалі в направляючих роликах 6. Ці ролики закріплені на каретці 4, яка може вільно переміщатися по нерухомій горизонтальній пластині 3, закріпленої на станині верстата. Для полегшення переміщення голівки і каретки всі ролики змонтовані на шарикопідшипниках.
Рис. 23. Конструкція копіювального пристрою.
1 - ходовий ролик каретки; 2 – вісь ролика; 3 – нерухома направляюча пластина; 4 – каретка; 5 – рухома пластина; 6 – напрямний ролик; 7 – шестерня; 8 – копірний ролик; 9 – копірний шаблон; 10 – змінні шестерні; 11 – редуктор 12 – електродвигун; 13 – державка для зварювальної голівки.
Вісі роликів мають кріпильні хвостовики 2, розташовані ексцентрично щодо вісі обертання ролика, за допомогою чого можна наблизити або віддалити ролик від направляючої і цим вибрати всі люфти в рухливих сполученнях каретки з направляючими.
Привід каретки (рис. 23.) складається з асинхронного електродвигуна 12 і редуктора 11. До складу редуктора входять черв'ячна передача і дві циліндричні передачі, із яких одна змінна 10. За допомогою змінних шестерен швидкість зварювання змінюється в межах 1-2,3 м/хв. Зварювання ведеться неплавким електродом.
Для виконання зварних швів, які можна розташувати у горізонтальній площині, застосовують двохкоординатний копіювальний пристрій, зображений на рис. 24. Пристрій змонтований на візку 4, що має направляючі ролики, по яких переміщується горизонтальна штанга 5. На правому консольному кінці штанги закріплюється зварювальна голівка 7, а на лівому - копіювальна голівка 2 з електромагнітним роликом (пальцем) 3, що під час зварювання обкатується по копирному шаблону 1. Таким чином, зварювальна голівка може рухатися по криволінійному контуру під дією копіювальної голівки і її ролика 3.
Рис. 24. Двохкоординатний копіювальний пристрій з
електромагнітною голівкою.
Під час зварювання виробу 6 магнітний палець 3 отримує обертання від електродвигуна через редуктор і притягається до робочої крайки сталевого копира 1. Магнітний палець обкатує контур копира, примушуючи зварювальну голівку 7, жорстко зв'язану з електромагнітною голівкою 2, у точності відтворювати траєкторію свого переміщення і виконувати зварювання шва необхідного обрису із заданою швидкістю.
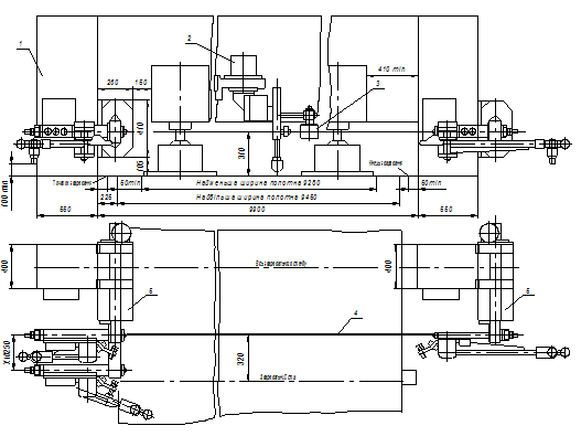
Прикладом виробничого використання копіювальних систем є система В666П. Система (рис. 25.) призначена для автоматичного направлення зварювального інструмента на стик при зварюванні великогабаритних виробів типу полотнищ із прямолінійними швами. Система складається з диференційно-трансформаторного датчика, двох пристроїв закріплення і переміщення троса, використовуваного як геометричний аналог лінії стику, апаратури керування, яка монтується у шафі керування зварювальними апаратами, виконавчих електродвигунів і механізмів коректування положення зварювального інструмента, що входять до складу зварювального апарата. Перед початком зварювання за допомогою двох відкидних світлоуказувачів постійно натягнутий трос виставляють так, щоб вертикальна площина, яка проходить через трос, була рівнобіжна стикові. При зварюванні диференційно-трансформаторний датчик вимірює положення рухливої частини коректора щодо троса й у випадку відхилення від положення, визначаємого тросом, включається коректувальне переміщення у відповідному напрямку.
Рис. 25. Система В666П автоматичного направлення зварювального інструменту на стик.
1 – портал зварювальної установки; 2 – зварювальний апарат; 3 – датчик; 4 – трос; 5 – пристрій закріплення і переміщення троса.
Система може бути використана при зварюванні прямолінійних стиків із крайками, обробленими на строгальному верстаті, незалежно від наявності прихваток або технологічного шва. Погрішність спостереження, описаної системи не більш ± 1 .5 мм.
Недоліки систем прямої дії: неможливість копіювання стикових з'єднань без розробки крайок і гарантованого зазору і складність копіювання стикових з'єднань із дрібними розробками крайок, напускних з'єднань з товщиною верхнього листа менш 3 мм, кутових з'єднань із зовнішньої сторони кута з катетом менш 3 мм., необхідність спеціальної конструкції зварювального апарата «з плаваючою частиною» у напрямку спостереження, що несе зварювальний інструмент; при неможливості копіювання збоку точки зварювання і недоцільності застосування планок для виведення щупа варто передбачати фіксацію «плаваючої» частини апарата перед виходом щупа з контакту з виробом при накладенні кінцевої ділянки шва. Крім того, в останньому випадку необхідно забезпечувати досить високу жорсткість конструкції всієї маніпуляційної системи, щоб зняття зусилля копіювання після виходу щупа з контакту з виробом не викликало надмірного додаткового зсуву зварювального інструмента з положення, що воно було зафіксовано перед цим.
Інші реферати на тему «Технічні науки»:
Підготовка металу до зварювання, інструменти та прилади для зварювання
Метрологія і номенклатура речовин — засоби наукового пізнання природи, техніки та економіки
Розрахунок прибутку і рентабельності трикотажного виробництва, яке спеціалізується на виготовленні полотна інтерлочного переплетення. Потужність виробництва 104 од. обладнання
Стіл однотумбовий щитової конструкції
Важільно-домкратні кантувачі
