Сторінка
3
Лінія може працювати в ручному й в автоматичному режимах.
Технічна характеристика лінії механічного різання листового прокату завтовшки 1.0-6.3 мм
|
Довжина листа, мм |
1 000-3 000 |
|
Ширина листа, мм |
500-1 800 |
|
Ширина смуг що нарізаються, мм |
20-1 000 |
|
Продуктивність лінії, м/с |
8.4 - 11.0 |
| Габарити лінії, мм: | |
|
довжина |
27000 |
|
ширина |
6 400 |
|
висота |
3 000 |
|
Вага, кН |
750 |
Потокова лінія У 824 складання та зварювання корпусів електродвигунів
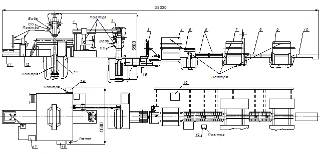
Для потокового складання і дугового зварювання здвоєних корпусів електродвигунів серії 4АН призначена лінія В824, зображена на рис. 4.
Лінія складається з наступних основних ділянок: позиції зварювання елементів, позиції зварювання корпуса, ділянки механізованого зварювання.
Позиції зварювання зв'язані між собою конвеєром і обладнані кантувачами і пневмопідйомниками. Заготівлі для зварювання корпусів електродвигунів знаходяться в пакетах під стрілою автоматичного навантажувача в районі візка-кондуктора.
Автоматичний навантажувач ребер захватами піднімає і переміщає заготівлі ребер на опори візка-кондуктора. Обичайки з пакетів вручну укладаються на ребро, що лежить на візку-кондукторі, потім візок-кондуктор переміщає зібраний виріб на позицію першого поста зварювання.
Рис. 4. Лінія В284 для складання і дугового зварювання
корпусів електродвигунів.
1 – перекладувач; 2 – зварювальна установка; 3 – підйомник;
4, 7, 9 – кантувачі;5 – підйомно-опускний стіл; 6, 8, 10 – конвейєри;
11 – візок; 12 – автонавантажувач; 13 – установка зварювальна;
14, 16, 17, 18 – шафи керування; 15 – візок; 19 – пульт керування.
Підйомник знімає виріб і підводить його до механізмів орієнтації і затиску установки для зварювання елементів корпуса електродвигуна. Під час зварювання виріб-заготівля знаходиться на опорах пневмопідйомника.
Одночасно другий автонавантажувач укладає ребро-стійку на ланцюги транспортера (у позиції вивантаження транспортера).
Перекладувач з ручним керуванням перекладає це ребро на опори підйомника другого поста зварювання. Ця операція виконується один раз для кожного корпуса електродвигуна.
Після закінчення зварювання на першому посту включається підйомник і опускає зварений елемент на ланцюги транспортера, за допомогою якого елемент переміщається в позицію вивантаження. Перекладувач з ручним керуванням знімає зварений виріб і перекладає його на другий пост зварювання, де відбувається остаточна фіксація, орієнтація і зварювання виробу з ребром.
Після закінчення зварювання підйомник опускає зварений виріб, а перекладувач з ручним керуванням знімає з транспортера, перекантовує й укладає на ребро звареної секції черговий елемент, що пройшов всі описані операції.
Процеси зварювання і транспортування виробу повторюються після чого підйомник опускає готовий виріб на транспортний візок, що перевозить зварений корпус для передачі на подальші операції – на ділянку механізованого зварювання.
Потокова механізована лінія виготовлення прямошовних труб.
Лінія призначена для виготовлення прямошовних труб діаметром 529 - 820 мм, довжиною до 12 м із товщиною стінки 6 - 12 мм. Технологічна схема виробництва труб показана на рис. 5. Лінія складається з чотирьох ділянок: заготівлі і формування листа, зварювання зовнішніх швів, зварювання внутрішніх швів, контролю якості й оздоблення труб.
На ділянці заготівлі і формування листа здійснюються правка листа на листоправильних вальцях, стругання крайок на кромкостругальному верстаті, підгинання крайок на валковому стані, попереднє й остаточне формування заготівлі на пресах. Передача заготівлі в процесі виготовлення виконується за допомогою приводних рольгангів.
Сформована заготівля труби за допомогою пересувних рольгангів надходить на ділянку зварювання зовнішніх швів, що складається з декількох паралельно розташованих автозварювальних станів.
Складання і зварювання зовнішнього шва робиться одночасно на безупинному валковому стані, що у процесі зварювання обтискає трубу, щільно притискає крайки, що зварюються, одну до іншої і переміщує трубу зі зварювальною швидкістю. Зварювальний апарат при цьому залишається нерухомим. Прихвачування крайок перед зварюванням не потрібно. Зварювання виконується трьохдуговим зварювальним апаратом типу А-688 на мідній ковзній підкладці - башмаку.
Рис. 5. Схема виробництва труб з листа.
1 – складування листів; 2 – подавання листа у виробництво; 3 – правка листа; 4 – стругання крайок листа; 5 – підгинання крайок;
Інші реферати на тему «Технічні науки»:
Складові і процеси природних екосистем
Охорона праці та техніка безпеки при ремонті та обслуговуванні автомобілів. Основні небезпечні та шкідливі фактори при ремонті та обслуговуванні автомобілів
Потоково-механізовані і автоматичні складально-зварювальні лінії
Розробка модельної конструкції з виготовлення сукні вечірньої
Стіл однотумбовий щитової конструкції
