Сторінка
13
Отже, можна сказати, що поняття – це цілісна сукупність суджень про якийнебудь об’єкт, ядром якої є судження, що відображають істотні ознаки об’єкта. Розвиток сприйняття вимагає введення геометричного матеріалу, тому що сам геометричний матеріал – це образи, це символи. Отже, друга складова – це мова. Дані образи й символи є моделлю реальних об'єктів. Реальні об'єкти можуть бути створені в ході моделюючої діяльності. Ці моделі представлені поняттями (сторона, кут, трикутник, многокутник), які природно учні намагаються вивчити якомога найкраще. А засобом опису моделей є мова. Тому на уроках спочатку вводимо моделі (геометричні образи).
Третій компонент, розвиток уяви, закладається в безпосередній діяльності конструювання. Однак мова й у цьому випадку є засобом розвитку учнів. При цьому творча фантазія дітей нічим не обмежена, зміст геометричної уяви діти формулюють опираючись на науковий понятійний апарат і логічні прийоми сприймання мислення.
Головне спрямування геометричного матеріалу, визначеного програмою і реалізованого в системі ретельно дібраних задач, – сформувати достатньо повну систему геометричних уявлень (образи геометричних фігур, їх елементів, відношень між фігурами та їх елементами).
На цій основі формуються просторові уявлення й уява, розвивається мова й мислення учнів, а також організовується робота, спрямована на вироблення важливих практичних навичок.
Робота з формування геометричних уявлень має проводитися так: властивості фігур учні виявляють експериментально, одночасно засвоюють необхідну термінологію й дістають певні навички; головне місце в навчанні повинні посідати практичні роботи учнів, спостереження й робота з геометричними об'єктами.
Оперуючи різноманітними предметами, моделями геометричних фігур, розглядаючи їх у процесі численних дослідів, учні помічають найзагальніші їх ознаки (що не залежить від матеріалу, кольору, положення, маси і т.п.).
У методиці формування геометричних уявлень важливо іти від «речі» до фігури (до її образу), а також навпаки, – від образу до реальної речі.
При формуванні уявлень про пряму, криву, відрізок прямої у математиці в початкових класах, під час вивчення початкового курсу геометрії, що закладає основи планіметрії, чітко прослідковуються чотири основні лінії:
1) первісні (неозначувані) поняття – точка, пряма, площина, лежати, лежати між, лежати по один бік, довжина відрізка, градусна міра кута;
2) перші означення – відрізок, рівні відрізки, кут, рівні кути, трикутник, рівні трикутники, півпряма, паралельні прямі;
3) аксіоми планіметрії;
4) перші доведення.
Метод логічних доведень на основі аксіом та послідовному доведенню теорем дозволяє гаступним чином викласти тему „Розрахунок площ основних багатокутників (прямокутник, паралелограм, трикутник, трапеція) методом побудови рівновеликих геометричних фігур”.
Матеріал заснований на наступних аксіомах і теоремах:
1. Про паралельні прямі
2. Про пересічу пряму для паралельних прямих і утворених нею кутах
3. Означеннях прямокутника, трикутника, паралелограма й трапеції
4. Про площу прямокутника
1). Про паралельні прямі
Теорема. Мінімальна відстань між двома паралельними прямими на площині є величина постійна й визначається перпендикуляром, опущеним з будьякої точки однієї прямої на іншу.
Доведення.
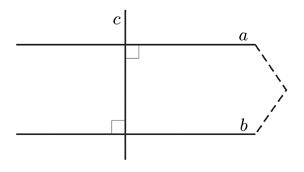
Розглянемо дві прямі а й b, кожна з яких перпендикулярна до прямої с (рис.3.1). Якби прямі а й b перетиналися, то із точки їхнього перетинання були б побудовані два перпендикуляри до прямої с, що неможливо. Отже, прямі а й b не перетинаються, тобто паралельні. Отже, дві прямі, перпендикулярні до третьої прямої, паралельні.
Рис. 3.1
Сформульоване твердження виражає ознака (перпендикулярність двох прямих до третьої прямої), по якому можна зробити висновок про паралельність двох прямих, або, коротко говорячи, ознака паралельності двох прямих.
2. Про січну паралельних прямих і утворених нею кутах
Нехай a і b дві паралельні прямі й
c третя пряма, що перетинає прямі a і b (рис.3.2). Пряма c стосовно паралельних прямих a і b називається січною.
Січна утворить із паралельними прямими дві пари внутрішніх одностронних і дві пари внутрішніх навхрест лежачих кутів.
Рис.3.2
Нехай відповідні кути
1 і
2 рівні:
l =
2. Тому що
2 =
3 (як вертикальні кути), те
l =
3, тобто рівні навхрест лежачі кути. Отже, а║ b.
Нехай сума однобічних кутів
1 і
2 дорівнює 180°. Тому що сума суміжних кутів
3 і
2 також дорівнює 180°, то
l =
3, тобто рівні навхрест лежачі кути. Отже, а ║ b
3. Означеннях прямокутника, трикутника, паралелограма й трапеції
Приведемо означення прямокутника, трикутника, паралелограма й трапеції.
Означення. Параллелограм це чотирикутник, у якого протилежні сторони рівні й паралельні, тобто лежать на паралельних прямих.
Означення.Прямокутник це параллелограм, у якого всі кути прямі.
Означення.Трапецією називається чотирикутник, у якого тільки дві протилежні сторони паралельні. Ці паралельні сторони називаються основагиями трапеції. Дві інші сторони називаються бічними сторонами.
Означення.Трикутником називається фігура . яка складається із трьох крапок, що не лежать на одній прямій, і трьох відрізків , попарно з'єднуючі ці точки. Точки називаються вершинами трикутника , а відрізки сторонами.
4. Про площу прямокутника
Теорема. Площа прямокутника зі сторонами
дорівнює
На підставі вищевикладених аксіом і теорем, доведемо теореми про площі елементарних багатокутників методом рівновеликих і рівноскладених елементів багатокутників.
а) Площа паралелограма
Теорема. Площа паралелограма дорівнює добутку його основи на висоту.
Довести: SABCD=AD x BH
Доведення
Перекроїмо паралелограм у прямокутник. Для цього розріжемо його по висоті BH , і трикутник ABH прикладемо праворуч як показано на рис.3.3. Одержимо прямокутник HBCH1 , рівноскладений з паралелограмом ABCD. Але рівноскладені фігури є рівновеликими, тобто SHBCH1=SABCD .
Інші реферати на тему «Педагогіка, виховання»:
Теоретичні основи національного виховання старших дошкільників шляхом ознайомлення з творами українського образотворчого мистецтва
Проектування технологій навчання за темою "конструювання боді" курсу "конструювання швейних виробів"
Етнопедагогічний підхід до виховання у дитячому хореографічному колективі
Навчання вимови на початковому ступені оволодіння усним мовленням
Теорія і практика А.С. Макаренка
