Сторінка
6
Характерною рисою даної установки є те, що велосипедний візок не має робочої зварювальної швидкості і під час зварювання стоїть нерухомо, а трактор рухається по виробу. При досить громіздких розмірах велосипедного візка, неминучих при великому діаметрі виробу, дуже важко забезпечити плавний рух візка та відсутність тремтіння підвішеної до неї голівки під час зварювання поздовжніх швів. Трактори позбавлені цих недоліків, і в цьому їхня перевага перед громіздкими самохідними візками.
Рис. 19. Установка для автоматичного зварювання поздовжніх і кільцевих швів
судин зварювальним трактором.
Друга їхня перевага полягає в тому, що при зварюванні барабанів неправильної форми (овальних, конічних, сигароподібних і т. ін.), зварювальний трактор при зварюванні спирається безпосередньо на барабан і, отже, копіює всі його рухи. Особливо вдало це питання вирішується в тому випадку, коли шви мають оброблення, по яких трактор рухається, як по напрямній рейці, точно копіюючи усі відхилення шва.
Недоліком застосування трактора є відсутність ємного флюсоапарата на ньому і необхідність переміщення його вручну від шва до шва.
При зварюванні зовнішніх кільцевих швів барабана ведучі бігунки трактора відключаються від приводу і шасі його приєднується до площадки горизонтальною шарнірною тягою. Ця тяга утримує трактор на місці, не обмежуючи, однак, його рухів під час обертання барабана.
ВЕРСТАТИ ДЛЯ АВТОМАТИЧНОГО ЗВАРЮВАННЯ
Установки для автоматичного зварювання, у яких технологічне устаткування, що виконує різні операції, розташовується на загальній станині, називаються верстатами для автоматичного зварювання. У складально-зварювальних верстатах механізовані й автоматизовані як основні (складання і зварювання), так і допоміжні (завантаження й встановлення виробу, підведення і відвід електрода, зняття звареного виробу й ін.) операції. Верстати-автомати можна вбудовувати в автоматичні лінії
Універсальний верстат УД 123 для дугового зварювання
у вуглекислому газі
Верстат призначений для дугового зварювання у вуглекислому газі кільцевих або поздовжніх швів циліндричних виробів з горизонтальною віссю обертання однією або двома зварювальними голівками. При використанні додаткових пристосувань, якими може бути укомплектований верстат, мається можливість зварювання кільцевих швів циліндричних виробів з вертикальною віссю обертання і виробів не круглої форми з поздовжніми швами (типу корпусних виробів).
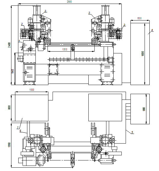
Верстат (рис. 20) складається з власне верстата, шафи керування, двох зварювальних випрямлячів ВДУ-504 і комплекту зварювальних проводів і кабелів керування, що зв'язують між собою верстат, шафу керування і зварювальні випрямлячі. Усі механізми і пристрої за винятком шафи керування і зварювальних випрямлячів змонтовані на загальній станині. Шафа керування і зварювальні випрямлячі встановлюються в зручному для обслуговування місці.
Виріб з горизонтальною віссю обертання закріплюється в патроні, встановленому на обертачі, і при необхідності, підтискається задньою бабкою. При зварюванні нежорстких виробів на напрямних може встановлюватися люнет. При зварюванні виробів з вертикальною віссю обертання на напрямних встановлюється додатковий обертач, вхідний вал якого закріплюється в патроні горизонтального обертача. Виріб, що підлягає зварюванню, закріплюється на оправці, встановленій на додатковому обертачі. Вироби не круглої форми з поздовжніми швами встановлюються на столі, що прикріплюється до станини. Режим зварювання встановлюється за допомогою коробки швидкостей, через яке передається обертання від двигуна до виробу, що зварюється, (при зварюванні кільцевих швів) і здійснюється поздовжнє переміщення зварювальних голівок (при зварюванні поздовжніх швів).
Зварювальні голівки мають індивідуальний привід маршового переміщення для настановного переміщення голівок до місця зварювання.
Рис. 20. Універсальний верстат УД 123 для дугового зварювання
у вуглекислому газі
1 – обертач; 2 – пульт керування; 3 – зварювальна голівка; 4 – шафа керування; 5 – кабелі керування; 6 – зварювальні кабелі; 7 – зварювальний випрямляч.
Верстат СТС-2М для складання й автоматичного зварювання таврових балок.
Верстат призначений для механізованого складання й автоматичного зварювання під флюсом прямих і криволінійних балок таврового перетину зі стінками постійної і перемінної висоти. Верстат використовується для виготовлення деталей корпуса судна - стрингерів, карлінгсів, рамних шпангоутів, бімсів і т. ін. Взаємне центрування заготівель, подача їх і зварювання робляться автоматично.
Складання і зварювання таврів здійснюються в такий спосіб (рис. 21).
Полицю балки укладають на приводний ролик 8 верстата і ролик 10 задньої рухливої опори. За допомогою бічних роликів 3 полиця центрується і притискається до приводного ролика 8 натискним роликом 7, потім на неї встановлюють стінку тавра, яка також центрується роликами 9 і притискається до полиці закріпленим на штоку пневмоциліндра 6 верхнім роликом 5. Вмиканням електродвигуна 2 через клиноремінну передачу, варіатор швидкостей, черв'ячний редуктор і пари циліндричних шестерень приводиться в обертання приводний ролик, і складений тавр отримує поступальний рух. До крайці тавра, що стикується підводять зварювальну голівку 4. Потім вмикається подача електродного дроту, флюсу і починається зварювання. Після зварювання половини довжини швів передній кінець тавра обпирається на ролики передньої опори 1.
Інші реферати на тему «Технічні науки»:
Технології конверсії отруйних відходів виробництва в нейтральні природні речовини
Предмет «Екологія і економіка» та його загальноосвітні основи
Проект цеху по випуску деталей для тумби туалетної
Термодинаміка — форми енергії і процеси її перетво¬рення в природних і технологічних системах
Проект відділення обробки щитових заготовок на виготовлення шафи для посуду
