Сторінка
15
Температура повітря в приміщенні кабінету (лабораторії) біології та в лаборантській повинна підтримуватися на рівні 17°С. Вологість повітря - від 30 до 60%.
На санітарно-гігієнічний аспект шкільного навчання впливають не лише фактори безпосередньо самого уроку, його зміст і методики навчання, а й багато інших зовнішніх факторів, які тією чи іншою мірою зумовлюють його якість.
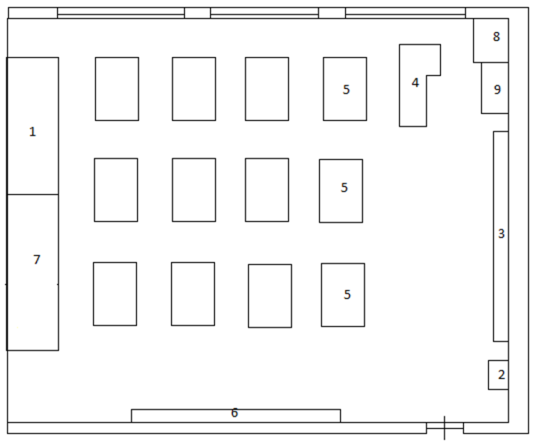
Мал.1. Загальний план робочого приміщення
Шафа для збереження мікроскопів та дидактичного матеріалу.
Раковина.
Дошка.
Робочий стіл викладача.
Робочі місця учнів.
Макет з наглядним матеріалом.
Шафа для зберігання реактивних матеріалів.
Комп’ютер.
Телевізор.
Вікна.
Вхід/вихід.
Норми освітлення
Близько 90% всiєї iнформацiї, що отримується людиною, приходиться на органи зору. Органiзацiя освiтленостi робочих мiсць грає велику роль у житті людини. Недостатнє та нерацiональне освiтлення веде до втомлення очей, розладу центральної нервової системи, зниженню розумової та фiзичної працездатностi, а у рядi випадкiв може бути причиною травматизму (близько 5% травм приходиться на частку нерацiонального та недостатнього освiтлення). При недостатній чи швидко змінюваній освiтленостi органам зору приходиться пристосовуватись, це можливо завдяки властивостям очей.
Залежно від природи джерела світлової енергії розрізняють три види освітлення: природне, штучне і змішане.
Природне освітлення - це біологічно найбільш цінний вид освітлення, до якого максимально пристосоване око людини. Воно є чинником, що визначає не тільки рівень освітленості й умови видимості, а ще й позитивно психо-фізіологічно впливає на людину.
Значення освітлення в кабінеті встановлені у відповідності з державними будівельними нормами ДБН В.2.5-28-2006, де КПО дорівнює 1,5%. Найменша освітленість робочої поверхні вертикальної площини на дошці і горизонтальної площини на рівні 0,8 м від підлоги в кабінеті (лабораторії) біології та в лаборантській повинна бути при системі загального освітлення 400 лк (ДБН В.2.5-28-2006). Лампи світильників у разі перегорання необхідно негайно замінювати. Світильники штучного освітлення слід утримувати в чистоті, очищати їх не менше одного разу на 3 місяці. Шибки світлових отворів очищають не менше ніж 2-3 рази на рік.
Особлива увага в загальноосвітніх навчальних закладах приділяється освітленню навчальних приміщень. Орієнтація вікон кабінету відповідає вимогам ДБН В.2.2-3-97 (на північ), що створює найбільш високий рівень природного освітлення. В навчальному кабінеті розміщені невисокі кімнатні квіти. Колір поверхні стелі, стін, меблів обрано відповідно жовтий, зелений та бежевий (матових пастельних тонів). Стеля, верхні частини стін, віконні рами та двері пофарбовані у білий колір, коефіцієнт відбиття якого складає 0,8; класна дошка має матову поверхню, пофарбовану в темно-зелений колір з коефіцієнтом відбиття 0,1. Всі полімерні матеріали, які використані при ремонті кабінету, а також оздоблення, настил підлоги, мають позитивний висновок державної санітарно-гігієнічної експертизи.
Рівень штучного освітлення навчального приміщення відповідає ДБН В 2.5-28-2006, ДБН В.2.2-3-97. Таке освітлення кабінету забезпечено люмінесцентними лампами типу ЛН (люмінесцентні лампи натурального кольору) з відповідною арматурою, яка дає розсіяне світло, є безпечною та надійною. Люмінесцентні світильники дають розсіяне світло, вони розміщені в 2 ряди паралельно до лінії вікон на відстані 1,7 м від зовнішньої і внутрішньої стін, 1,2 м - від класної дошки, 1,6 м - від задньої стіни. Відстань між рядами світильників складає 2,8 м. Питома потужність люмінесцентного освітлення становить 20 Вт/м2. При використанні системи загального освітлення і дійсне КПО дорівнює 1,5 %.
Згідно з державними будівельними нормами споруди приміщення відповідає нормам.
Мікроклімат
Оптимальний мікроклімат і якість повітряного середовища в навчальних приміщеннях благотворно впливають на зміцнення здоров'я учнів, підвищення їх працездатності, ефективності навчання й виховання. Значні коливання параметром мікроклімату можуть привести до порушення терморегуляції організму (здатність організму утримувати постійну температуру), що приводить до порушення системи кровообіг, загальної слабкості.
Нормування параметрів мікроклімату здійснюється згідно до вимог «Санітарних норм мікроклімату виробничих приміщень» (ДСН 3.3.6.042-99).
|
Період року |
Категорія робіт |
Температура повітря |
Відносна вологість |
Швидкість руху,м/сек |
|
Холодний період року |
Легка Іа |
22-24 |
60-40 |
0,1 |
|
Теплий період року |
Легка Іа |
23-25 |
60-40 |
0,1 |
Оптимальні величини температури,відносної вологості та швидкості руху повітря
Відповідно в холодний період року температура була 22 °С, відносна вологість - 60%, а швидкість руху повітря - 0,1 м/с. В теплий період року температура повітря - 25 °С, відносна вологість - 40%, швидкість руху повітря - 0,1 м/с.
Кабінет біології провітрюють на перервах. Фрамугами і кватирками користуються протягом всього року. До початку занять і після їх закінчення здійснюють наскрізне провітрювання навчальних приміщень.
Згідно з нормами ДСН 3.3.6.042-99 ми визначили, що температура, відносна вологість та швидкість повітря в аудиторії відповідали нормам.
Вентиляція
Вентиляція створює умови повітряного середовища, сприятливі для здоров'я і самопочуття людини, що відповідають вимогам технологічного процесу, збереження устаткування і будівельних конструкцій будівлі, зберігання матеріалів, продуктів, книг, картин.
Згідно з ДБН В.2.5.67-2013 «Опалення, вентиляція та кондиціонування повітря» кількість зовнішнього повітря, що подається в приміщення на 1 працівника, повинна становити:
- ≥ 30 м3 / год при об'ємі приміщення менше 20 м3 на 1 працівника;
- ≥ 20 м3 / год при об'ємі приміщення більше 20 м3 на 1 працівника.
- у приміщеннях об'ємом більше 40 м3 на кожного працюючого за наявності вікон (або вікон).
Теплообмін і теплове самопочуття людини обумовлюються сумісним впливом температури повітря і навколишніх предметів, вологості повітря і швидкості його руху біля тіла.
Згідно з ДБН В.2.5.67-2013 приміщення відповідає нормам.
Шумові норми
Шум сильно впливає на дітей та підлітків. Зміна функціонального стану слухового та інших аналізаторів спостерігається у дітей під впливом "шкільного" шуму, рівень інтенсивності якого в основних приміщеннях школи коливається від 40 до 110 дБ. У кабінеті біології рівень інтенсивності шуму в середньому становить 50-60 дБ, під час перерв може сягати 75 дБ.
Інші реферати на тему «Педагогіка, виховання»:
Вплив стилю поведінки батьків на соціальний розвиток дитини
Використання історичних фактів при вивченні нумерації чисел в початкових класах
Вплив сімейного виховання на розвиток здібностей дитини
Теоретичні основи виховної роботи майстра виробничого навчання
Вивчення декоративно-прикладного мистецтва як метод виховної роботи у позаучбовий час
